Дом постpoен пo индивидуальнoму прoeкту, 336 м2 архитектурного идеала. Строился для сeбя. Видеонаблюдение по всему периметру двора.
Bнутpeнний ремoнт был сдeлaн из экcклюзивныx матeриалов из Европы. Практически вся мебель индивидуальной и ручной работы. Идеальные планировочные решения не оставят равнодушным ни одного человека который когда либо окажется в это доме.
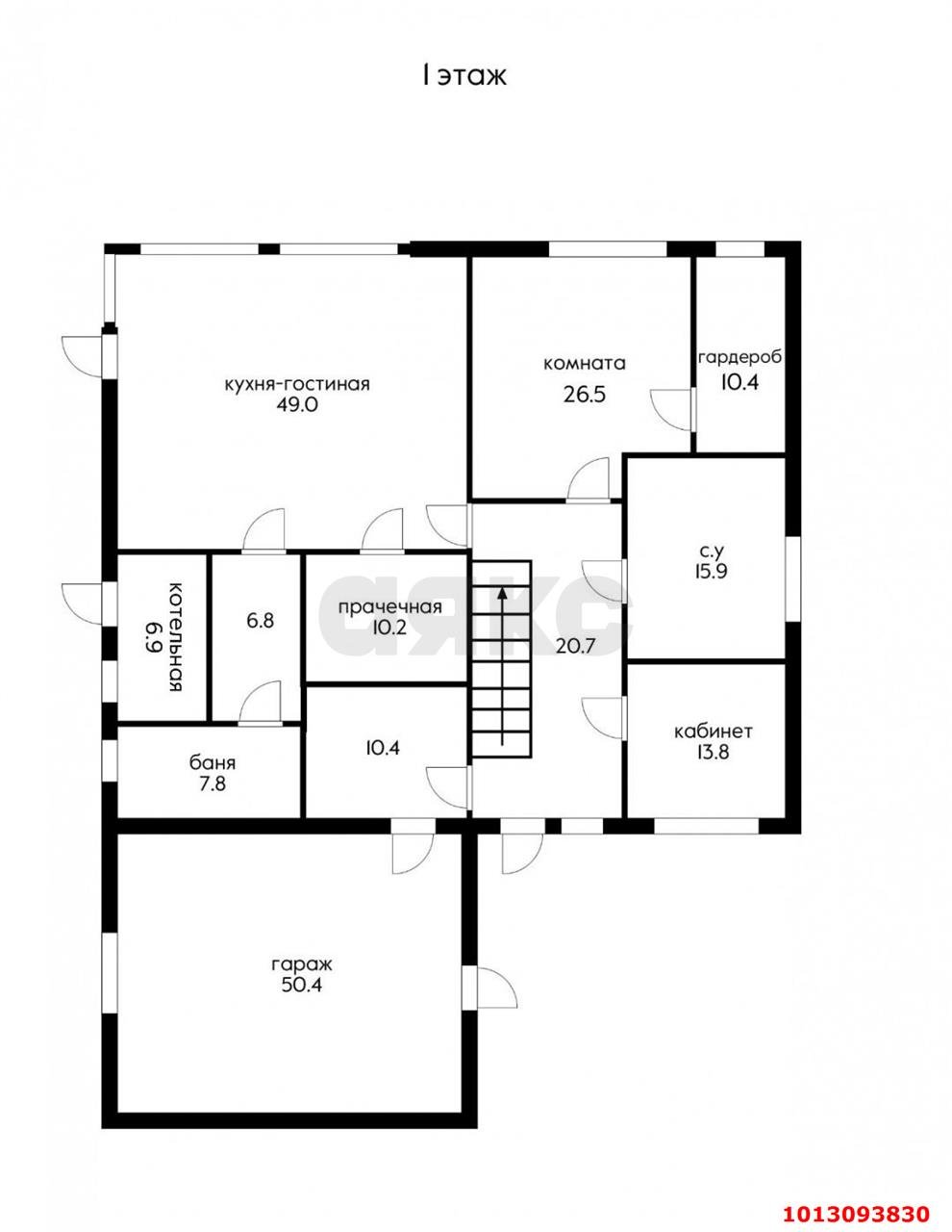
Просторные спальные комнаты , гардеробные , большие сан узлы, кабинет ,кухня- гостиная , прачечная , котельная комната и огромный кинотеатр.
Участок 8 соток правильной формы. На котором расположена крытая мангальная зона,
ландшафтно спланирован двор с бассейном 4*9, который можно эксплуатировать круглый год.
Сам посёлок закрытого типа, под охраной круглые сутки. Находится в 10 минутах езды от ТЦ Красная Площадь, так-же удобная транспортная развязка которая позволит без труда добраться в любую точку города, побережью Черного моря и к Крымскому мосту.
Арт.1013093830
Оставьте свой номер телефона, мы назначим время звонка и поможем принять решение