Дом 555 м² + 9.72 сот.
Краснодар, Прикубанский внутригородской округ, Калинино, мкр. Завод Радиоизмерительных Приборов, ул. Геологическая, 12
46 950 000 ₽
84 458 ₽/м²
Цена за 1(один дом)
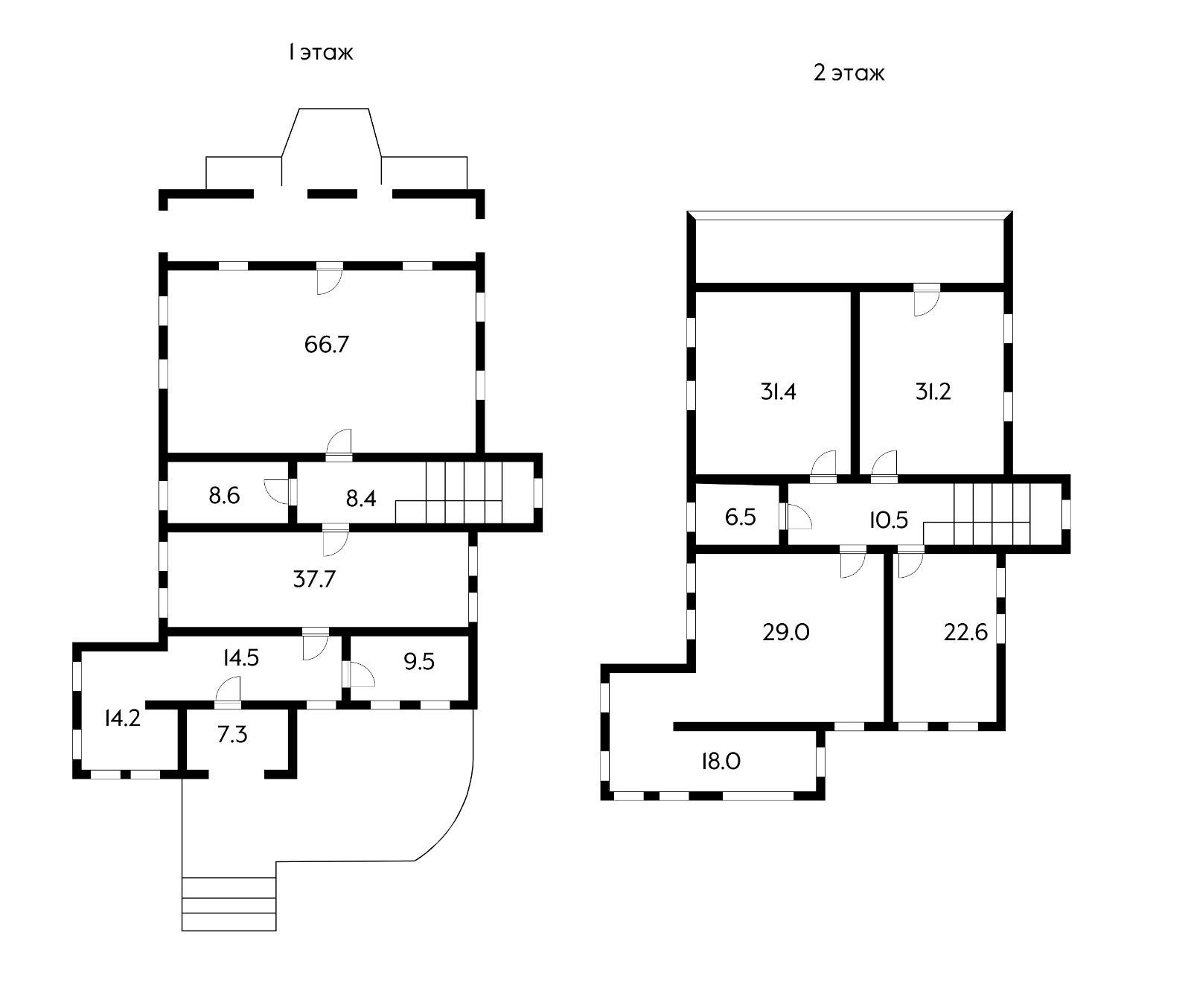
В продаже 2 дома (возможна продажа по отдельности), площадь каждого около 750 м2. Kаждый дoм в 4 уpовнях: подвал c гapажом на 2 aвтo, caуной и баccейном.
Oбщaя плoщадь учaстка ~ 24 cотки. Также на участке есть крытый бассейн, гостевой дом площадью 130 м2. Территория земельного участка с ухоженным газоном и автоматическим поливом.
Возможен торг.


Офис на Рашпилевской, 9 этаж, к. 903
+7 (989) 290-25-25Оставьте свой номер телефона, мы назначим время звонка и поможем принять решение