Продаю дом для дружной семье в лучшем коттеджном поселке п.Южный, прямо возле новой действующей современной большой школы.
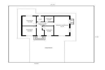
7*12 метров, земельный участок 3,27 сотки, участок угловой, а это означает, что у Вас намного больше места и фасада для Вашего удобства, 3 спальни и кухня-гостиная, теплые полы везде, кроме спален!!!
Удобное расположение в черте города со всеми преимуществами жизни на природе. Коттеджный поселок окружен зелеными полями. Тишина, чистый воздух и приватность. В КП 1200 домов, вокруг нет многоэтажек - Вы можете спокойно отдыхать на своей территории и не бояться случайных взглядов. Никаких соседей за стенкой - Вы застрахованы от звука дрели по утрам или неожиданной ночной дискотеки.
Развитая инфраструктура, центральное газоснабжение, экологичность, 15 минут до кинотеатра Аврора это самые малые плюсы данного предложения. Свой дом по цене однокомнатной квартиры, разве не об этом Вы мечтали?
Звоните и превращайте мечты и цели в реальные сделки уже сегодня!
Арт.1014364056
Оставьте свой номер телефона, мы назначим время звонка и поможем принять решение