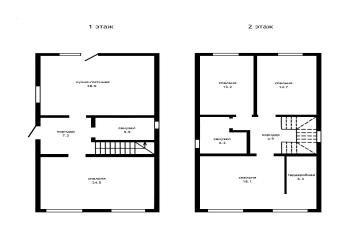
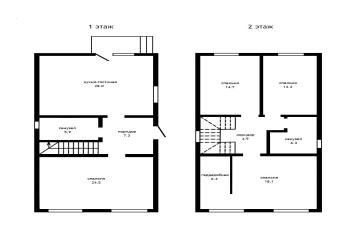
Продам новый одноэтажный дом 84 м2 с земельным участком 3 сотки.
Закрытый коттеджный поселок. В поселке строиться школа и 2 детских сада. Так же есть действующая школа № 15.
Вся необходимая инфраструктура в 15-20 минутах ходьбы. Продуктовые магазины, пекарни, кофейни, детские развивающие центры.
Грамотная планировка вмещает в себя 3 изолированные спальни, просторную кухню- гостиную. Есть 2 выхода: второй - на задний двор (террасу), куда вы сможете выйти с чашкой кофе и насладиться чистым воздухом утром.
Дом со всеми коммуникациями: свет, вода скважина, газ по меже. Застройщик к отопительному сезону установит двухконтурный газовый котел.
Забор, как и сам дом, полностью будет из кирпича, благодаря тому что дом как и забор кирпичный, лучше всего сохраняет тепло, так же стены утеплены пенополистиролом 3см, создаёт эффект термоса, также установлены автоматические роллеты и хорошего качества калитка.
Звоните!
Арт.1013209594
Оставьте свой номер телефона, мы назначим время звонка и поможем принять решение