Представляем вашему вниманию великолепный дом площадью 294,4 м² на ухоженном участке 8 соток — идеальное место для комфортной жизни большой семьи.
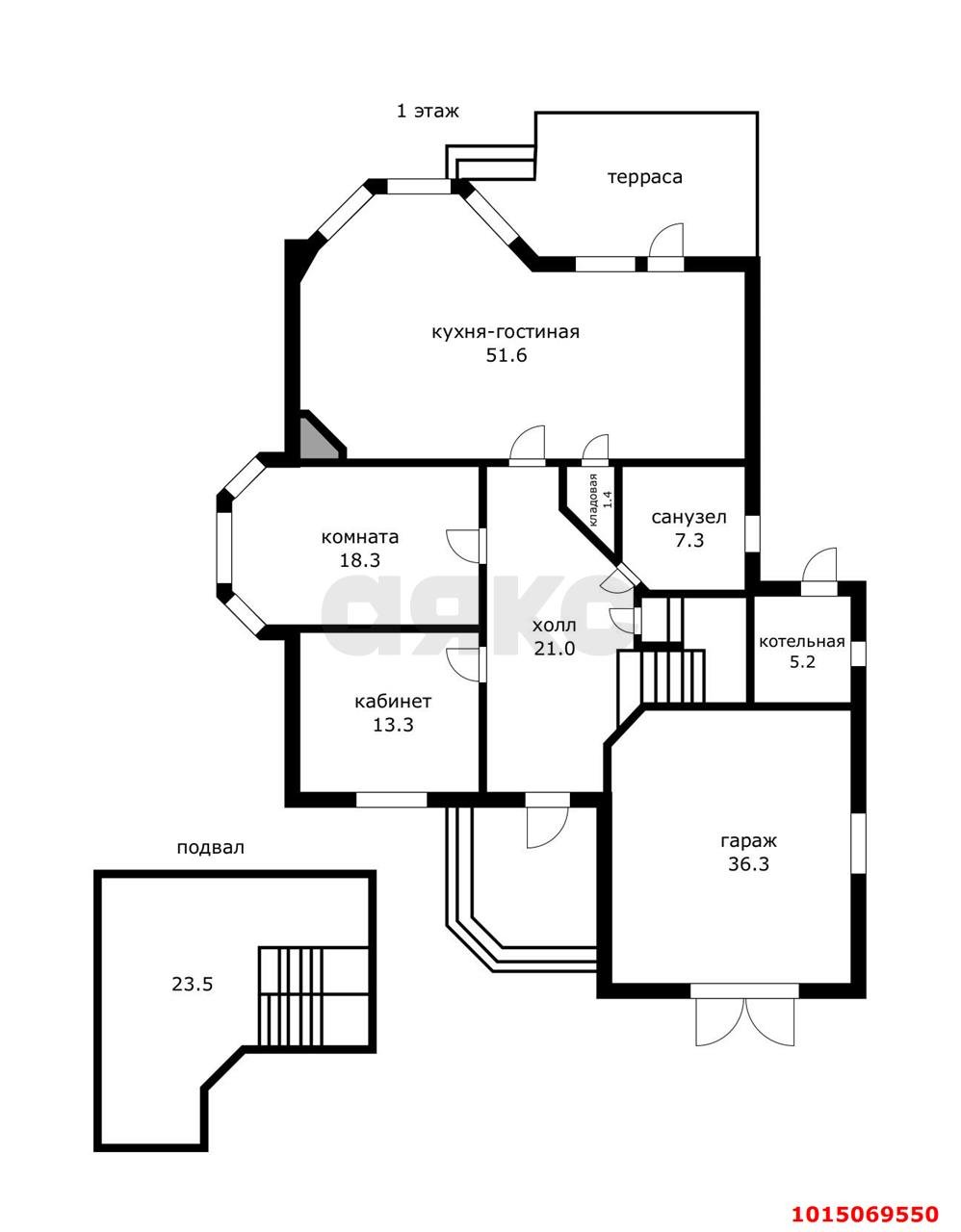
Функциональная планировка первого этажа. Первый этаж встречает просторным холлом 21 м² и включает:
- Просторную кухню-гостиную площадью 51,6 м² с выходом на террасу — идеальное место для семейных ужинов и встреч с друзьями
- Уютный кабинет 13,3 м² для работы и отдыха
- Гостевую спальню 18,3 м²
- Ванную комнату 7,3 м²
Второй этаж: пространство для отдыха и развлечений. Второй этаж предлагает:
- Мастер-спальню 21,4 м² с гардеробной 5,4 м²
- Две гостевые спальни 12 м² и 20 м²
- Просторную игровую комнату 34,3 м², которая может служить спортивным залом
- Второй кабинет 16,5 м²
- Ванную комнату 9,6 м²
- Второй холл 21 м²
Территория и удобства. Территория дома включает:
- Гараж на два автомобиля 36,3 м²
- Домик садовника с необходимым инвентарем для ухода за участком
- Ухоженный двор с зелеными насаждениями
Престижное расположение. Дом расположен в тихом спальном районе, в непосредственной близости от ключевых объектов инфраструктуры:
- Город Спорта
- Баскет Холл
- ТЦ «Красная площадь»
Юридическая чистота:
Документы полностью готовы к быстрой сделке. Один взрослый собственник, без обременений.
Не упустите возможность стать владельцем этого великолепного дома! Звоните прямо сейчас, организую показ в удобное для вас время и отвечу на все интересующие вопросы.
Арт.1015069550
Оставьте свой номер телефона, мы назначим время звонка и поможем принять решение