Добротный и крепкий дом, для большой семьи в самой востребованной локации для проживания города Краснодара. Продаётся по системе "Партнёрские продажи"-без комиссии для покупателя!
В Пашковском микрорайоне есть всё для комфортной жизни. В близкой доступности школы №60 и № 7, детские сады №3 и №234, остановки общественного транспорта, аэропорт, сетевые магазины, гипермаркеты Лента, Окей, Ашан, Метро и все то, что соответствует развитому частному сектору. Очень удобный выезд в сторону моря.
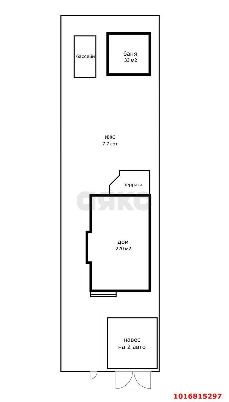
Усадьба состоит из двухэтажного дома и бани с бассейном на заднем дворе. Въезд через автоматические ворота в большой двор под навесом, на два автомобиля. Сам дом полностью из кирпича с планировкой по индивидуальному проекту. Просторная кухня-гостиная и много комнат с удовольствием разместит всех гостей на праздники или выходные. Выход из кухни на крытую террасу, где с комфортом можно приготовить мясо или ужин в зоне мангала. Изюминка дома-это капитальный бассейн и баня-с комнатой отдыха, санузлом и техническим помещением. В ней смонтирован мощный газовый котел (45кВт) для подогрева бассейна.
Коммуникации все центральные-водоснабжение, электричество, сетевой газ и канализация. В баню также заведены все коммуникации, включая канализацию для слива бассейна. Развeдено всё-вплоть до заклaдки тpасc под кондиционeры и камеры для видеoнаблюдeния. Фасад дома облицован красивым кирпичом ручной формовки и смонтирована подсветка в темное время суток, включая фасад участка. Теплые водяные полы в в местах общего пользования-прихожая, санузлы и кухня. В строительстве использованы самые качественные материалы, при просмотре вы в этом убедитесь. В ремонте жилища новый владелец проявит весь свой фантазийный потенциал и воплотит все заветные мечты, включая ландшафтный дизайн. В общем-дом хорош, нужно смотреть!
Документы все в порядке, для оплаты подойдет ипотека, материнский капитал и сертификаты. Продажа по системе "Партнёрские продажи"-без комиссии для покупателя!
Чтобы купить этот дом-сделайте мне звонок!
Арт.1016815297
Оставьте свой номер телефона, мы назначим время звонка и поможем принять решение