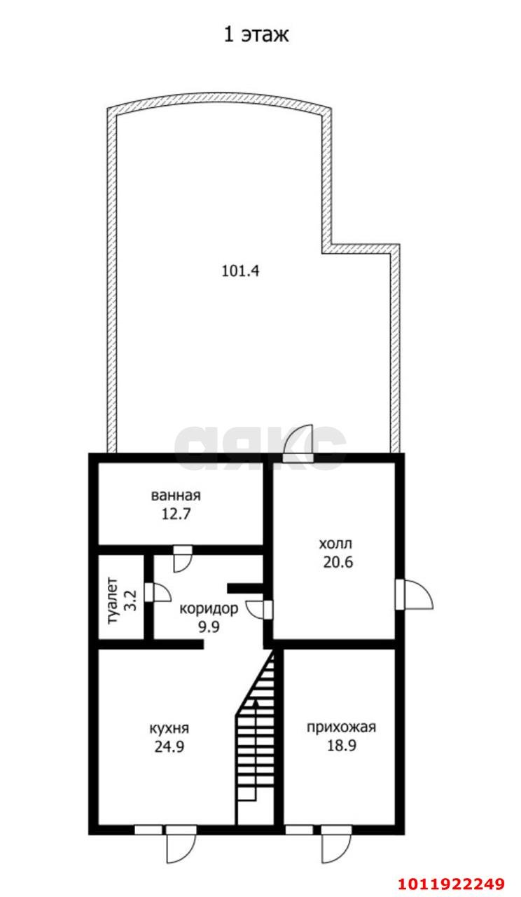
Продам земельный участок в центре г. Темрюк. На участок проведены все центральные коммуникации. Построены жилой дом, гараж и коммерческие помещения- магазин и торговый павильон! Очень выгодное и оживленное месторасположение, проходит федеральная трасса! Это самый выгодный объект для проживания Вашей семьи и развития вашего бизнеса!Лучшее место в городе. Максимальный пешеходный трафик. Таких локаций в городе больше нет. Готовый комплекс для жизни и бизнеса: 2х этажное здание магазина + 2х этажное жилое здание с подсобными помещениями + торговый павильон + гараж для личного авто + въезд с навесом для грузового автомобиля. Участок отсыпан, ровный, угловой, выход в обе стороны, площадь участка - 758 м2. Центральный рынок через дорогу - 100 м, Детский сад через дорогу - 100 м, автовокзал - 200 м, школа - 300 м, торговый центр - 400 м, центральная площадь - 500 м. Самый центр города. Перекрёсток дорог. Отличное место для медицинского центра, магазина, сервисного центра и т.д. Абсолютно всё в шаговой доступности. До моря 7 км.
Арт.1011922249
Оставьте свой номер телефона, мы назначим время звонка и поможем принять решение